Vapaat vuokra-asunnot
Liliuskodit tarjoaa laadukasta vuokra-asumista
keskellä joenrannan monimuotoisuutta ja hiljaisuutta
ASUNTO C1

Asunto C1
1h + k, 54 m2
Ihastuttava tilava yksiö kolmoskerroksessa, jossa on ikkunat päädyllä sekä ikkunakokonaisuus huippu-näkymällä joen yli. Asunnossa on kaunis vinokattorakenne. Suihku ja wc eri tiloissa. Koko lattia-ala on yhteensä 53,8 m² (josta 7,7 m² sisäkattokorkeus on alle 160 cm). Vuokra on 550 €/kk + vesi + sähkö. Vesi ja sähkö kulutuksen mukaan. Lämmitys kuuluu vuokrahintaan.
Vapautuu 1.6.2026
UUDET ASUNNOT TULOSSA!
3 kpl uusia vuokra-asuntoja tulossa vuokralle:
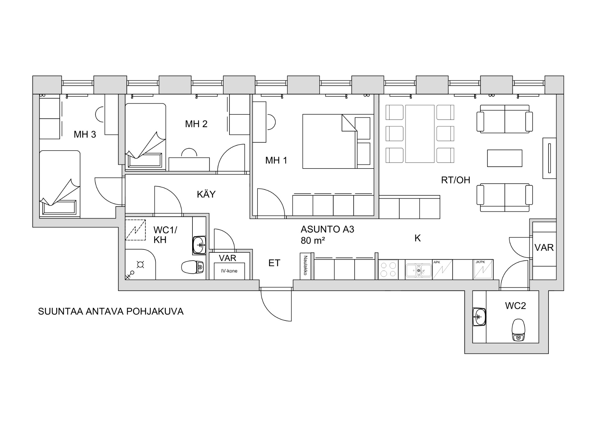
ASUNTO A3
4h+avok, 80 m², 1-krs, pihanäkymä

ASUNTO A3
4h+avok, 80 m²
Moderni ja valoisa neliö ykköskerroksessa! Korkea sisäkatto tuo asuntoon avaraa tunnelmaa. Asunnossa on kolme makuuhuonetta, avokeittiö + kätevä keittiövarasto, olohuone ja wc-tilat. Viihtyisä avokeittiö on kauniin värinen, tänne mahtuu hyvin isompikin ruokapöytä. Erillinen wc ja wc/suihkutila tuo lisää toimivuutta erityisesti lapsiperheen tai suuremman talouden arkeen. Eteisessä tilava liukuovikomero peiliovilla. Vuokra: 800€/kk + sähkö + vesi. Vesi ja sähkö kulutuksen mukaan. Lämmitys kuuluu vuokrahintaan.
Asunto on valmistunut, muuttovalmis 1.6.2026
ASUNTO A4
3h+avok, 81 m², 1-krs, joenrantanäkymä

ASUNTO A4
3h+avok, 81 m²
Tilava ja valoisa kolmio loistosijainnilla ykköskerroksessa joenrantanäkymällä! Suuret ikkunat tuovat asuntoon runsaasti luonnonvaloa. Asunnossa on kaksi makuuhuonetta, suihku ja wc eri tiloissa, avokeittiö ja reilun kokoinen olohuone. Molemmissa makuuhuoneissa on walk-in-vaatehuoneita. Liukuovikomero peiliovilla tarjoaa tyylikkyyttä eteiseen. Vuokra: 820€/kk + sähkö + vesi. Vesi ja sähkö kulutuksen mukaan. Lämmitys kuuluu vuokrahintaan.
Asunto on valmistunut, muuttovalmis 1.6.2026
ASUNTO B3
3h+kt, 67 m², 2-krs, pihanäkymä

ASUNTO B3
3h+kt, 67 m²
Tyylikäs kolmio kakkoskerroksessa! Tässä asunnossa on kaksi makuuhuonetta, tilava keittiö, olohuone ja kivasti varastotilaa. Vaaleat pintamateriaalit luovat raikkaan sekä ajattoman tunnelman. Tilava kylpyhuone tuo arkeen mukavuutta. Eteisessä liukuovikomero peiliovilla. Vuokra: 670€/kk + sähkö + vesi. Vesi ja sähkö kulutuksen mukaan. Lämmitys kuuluu vuokrahintaan.
Asunto on valmistunut, muuttovalmis 1.6.2026
ASUNTO B4
3h+kt, 72 m²
Asunto on valmistunut ja varattu
